
Ampthill Castle in Bedfordshire was built in the early 15th century by Sir John Cornwall, a soldier who had profited from the wars in France under kings Henry IV and Henry V, and married Henry IV’s sister Elizabeth. The location was both close to London and good for hunting in the local parks. The result of his work was what the historian Anthony Emery describes as “one of the major fortified houses of the early fifteenth century, a leading baronial residence”.
Edmund Grey, the Earl of Kent, purchased the castle in 1465 but his grandson, heavily in debt, forfeited it to Henry VII in 1507. Henry VIII purchased the castle in 1524, after a legal battle over its ownership, and Katharine of Aragorn stayed there in 1533 during their divorce proceedings. Henry used it between 1534 and 1540, bringing Anne Boleyn there with him, and turning Ampthill into a royal honor – a medieval feudal barony – in 1542, supported by estates in Bedfordshire and Buckinghamshire. Henry extended the hunting park and constructed a bowling alley, then a popular entertainment for the social elite. Henry VIII had intended to develop the castle into a larger palace but these plans were not progressed.
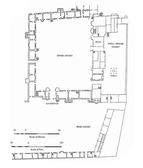
By 1567, the castle had a large inner court, 270 by 220 ft across, with a gatehouse, a stone hall and residential apartments built from brick, accessed through several stone turrets, dating from Cornwall’s original construction. The outer, or base court contained more lodgings and service facilities, the former having been redeveloped by Henry VIII. Two smaller courts were reached via a courtyard with a well at its centre.

By then, however, the castle was already in disrepair. Queen Elizabeth I wanted to recommence Henry’s plans for redevelopment and conducted some clearance work, but again the work never progressed. The castle was recorded as ruined in a survey of 1605 and although James I again undertook to rebuild the site, encouraged by the opportunities for hunting, he abandoned the scheme in 1607, deciding to focus on developing nearby Theobalds House instead.
The castle continued to decline, not helped by thefts of stone and materials from the site by the local townsfolk of Ampthill, and hastened by further damage during the English Civil War. By 1649, the castle had been demolished. Charles II leased out the land in 1677 and the estate was sold to the Duke Bedford in 1881. The site was used by the Bedfordshire militia for annual camps, and for mobilisation camps in the First World War, as well as for holding prisoners of war in the Second World War.
Today there are no remains of the original castle above ground. Katherine’s Cross was built to commemorate Katherine of Aragorn and marks the location of the inner court. In the 1980s, the cross formed the final location of the Golden Hare treasure hunt. The nearby Ampthill Park House dates from the 1680s, with remodelling in the late 18th century. It is now divided into private residences while the surrounding parkland is managed by the local council
In the 21st century, a range of archaeological surveys were undertaken to best align the 1567 survey map of the castle with the remaining earthwork features on the site. These surveys revealed earlier Anglo-Saxon activity on the site of the former castle.
Bibliography
- Ampthill & District Archaeological & Local History Society. (2011) Geophysical Surveys of the area believed to be the site of Ampthill Castle in the County of Bedfordshire. Ampthill & District Archaeological & Local History Society: Ampthill.
- Emery, Anthony. (2000) Greater Medieval Houses of England and Wales 1300-1500, Volume II: East Anglia, Central England and Wales. Cambridge University Press: Cambridge.
- Northamptonshire Archaeology (2009) Ampthill Castle Community Archaeology Project Ampthill Park, Woburn Road, Ampthill Bedfordshire: Updated Project Design. Northamptonshire Archaeology: Northampton.
Attribution
This article includes an image from the Wikimedia website, Katherine’s Cross, by Paul Dixon, released under CC BY-SA 2.0.